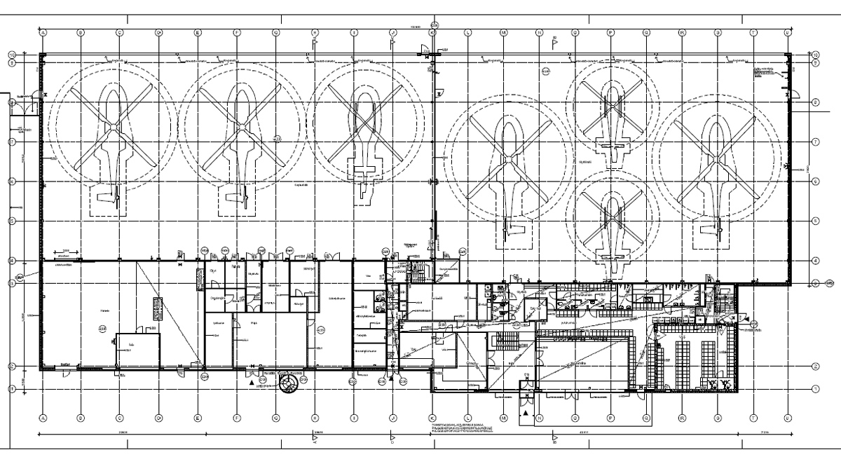
Vantaan kaupunki myönsi kesäkuussa rakennusluvan Finavian rakennuttaman tukikohdan investointi on arvoltaan noin 10,6 miljoonaa euroa ilman arvonlisäveroa. Rakennuspaikalla on tehty valmistelevia töitä jo joulukuusta 2014 lähtien. Tontilta on purettu mm. siellä sijainnut lentokonehalli (vielä pystyssä alla olevassa kuvassa). Varsinaiset rakennustyöt alkavat tulevan syksyn aikana. Helikopteritukikohdan 6093 brm²:n kokoisiin tiloihin tulee kalustosuoja, huoltotilat sekä toimistoja. Rakennuksen eteen asematasolle on varattu tilaa helikopereiden operaatioita varten. Kalustosuojan kylkeen rakentuva toimisto-osa on osin kolmikerroksinen. Tilavuutta rakennuksella on 52 480 kuutiometriä. Rakennuksen julkisivun teräspelti- ja teräsprofiiliverhous on värimaailmaltaan harmaansävyinen sisältäen osin tummaa hopeaa ja sinistä väriä. Helikopteritukikohdan suunnittelun takana on helsinkiläinen vuonna 1973 perustettu arkkitehtitoimisto Jeskanen-Repo-Teränne Arkkitehdit Oy. Yli sadassa projektissa mukana ollut arkkitehtitoimisto on pyrkinyt toimeksiannoissaan laadukkaaseen ja ajallisesti kestävään arkkitehtuuriin. Yksi monista toimiston projekteista on ollut mm. Utin Jääkärirykmentin helikopterihalli. Rajavartiolaitoksen tukikohta on määrä ottaa käyttöön joulukuussa 2016. Helsinki-Vantaalle rakennettavaan uuteen ilma-aluskorjaamoon keskitetään toimintoja sekä Turusta että Malmilta. Finavian ja Rajavartiolaitoksen välillä solmitaan rakennuksesta 20-vuotinen vuokrasopimus. Se on kokonaisarvoltaan noin 18,7 miljoonaa euroa ilman arvonlisäveroa.
Rajavartiolaitoksen ilma-aluksia operoivalla Vartiolentolaivueella on käytössään 12 helikopteria ja kaksi Dornier Do 228 -valvontalentokonetta. Pyöriväsiipiskalusto koostuu Airbus Helicopters AS 332 Super Puma, Agusta Bell AB/B 412 ja AgustaWestland AW 119ke Koala -helikoptereista.
Myös nykyiset Turusta toimivat kolme Super Pumaa modernisoidaan samaan standardiin. Niiden tekniikka uudistetaan peruskorjauksella vuoteen 2019 mennessä. Käyttöikä jatkuu näin 15 - 20 vuodella ja suorituskyky vastaa uusia koptereita. Lue myös aiempia Lentoposti.fi:n uutisia Rajavartiolaitoksen uudesta Helsinki-Vantaan tukikohdasta:
|
|||




