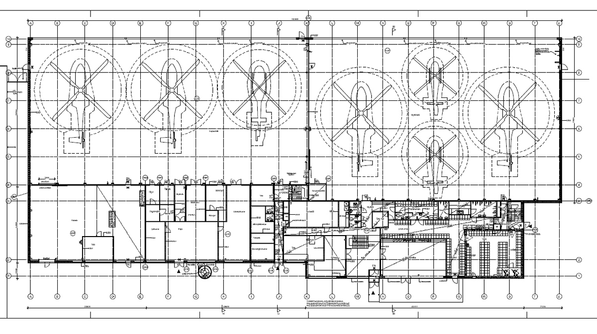
Uusi tukikohta nousee asemataso 4:n viereen kiitotie 15-33:n itäpuolelle osoitteeseen Tullimiehentie 16. Tontilla sijaitsi aiemmin Blue1:n ns rättihalli, jossa viime aikoina mm. säilytettiin Suomen Ilmailumuseon koneita.
Rajavartiolaitoksen tukikohta oli alunperin määrä ottaa käyttöön joulukuussa 2016. Uuteen ilma-aluskorjaamoon keskitetään toimintoja sekä Turusta että Malmilta. Vartiolentolaivueen siirto Vantaalle oli tarkoitus toteuttaa kustannusneutraalisti. Finavia sai Malmin rakennuksista maaliskuussa 2014 tehdyllä kaupalla 12 miljoonaa euroa.
Iltalehden mukaan pääurakoitsijasta ei ole vielä tietoa. Syksyllä järjestetyssä kilpailutuksessa ei halvinkaan tarjous sopinut budjettiin.
Alunperin tukikohdan piti olla valmis ensi vuoden syksyllä. Lehden mukaan nyt käyttöönotto tapahtunee viimeistään alkuvuonna 2017. Rajavartiolaitoksen ilma-aluksia operoivalla Vartiolentolaivueella on käytössään 12 helikopteria ja kaksi Dornier Do 228 -valvontalentokonetta. Pyöriväsiipiskalusto koostuu Airbus Helicopters AS 332 Super Puma, Agusta Bell AB/B 412 ja AgustaWestland AW 119ke Koala -helikoptereista.
Myös nykyiset Turusta toimivat kolme Super Pumaa modernisoidaan samaan standardiin. Niiden tekniikka uudistetaan peruskorjauksella vuoteen 2019 mennessä. Käyttöikä jatkuu näin 15 - 20 vuodella ja suorituskyky vastaa uusia koptereita. T.T. Iltalehden uutinen Lue muita Lentoposti.fi -juttuja aiheesta:
|
|||




